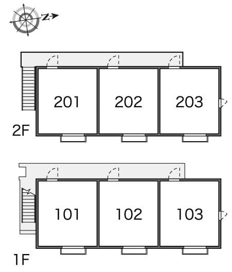
Tùy chỉnh tìm kiếmLEONEXT K Three | Apartment for Rent in Saitama - Arealty Japan