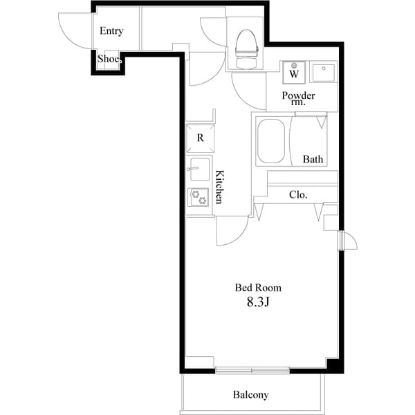
Tùy chỉnh tìm kiếmPlage Waseda | Apartment for Rent in Tokyo - Arealty Japan