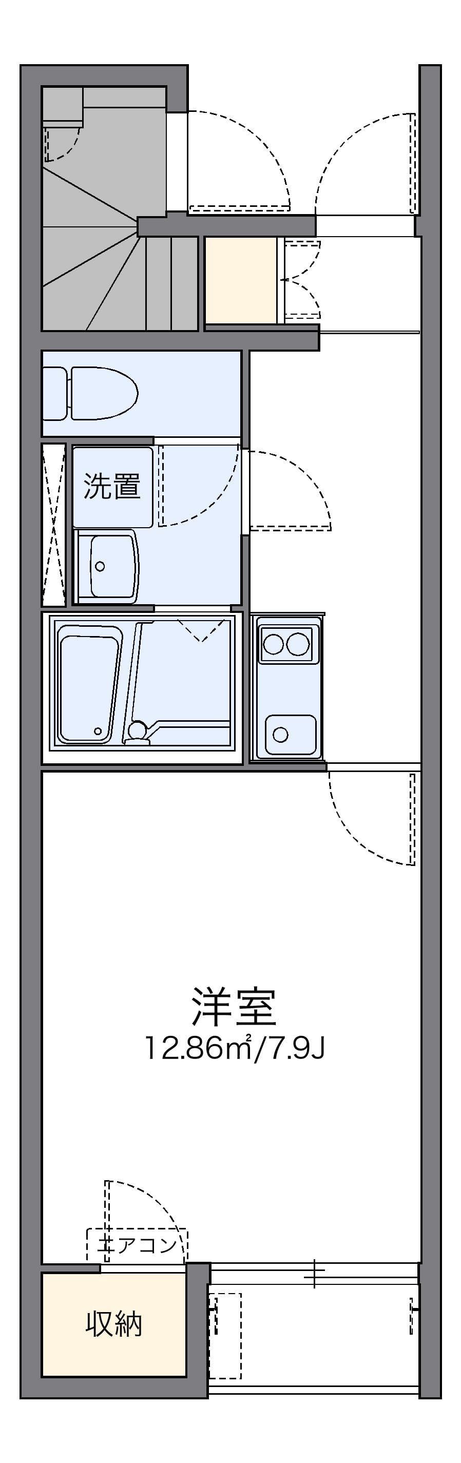
Tùy chỉnh tìm kiếmLEONEXT Lue for Rent in Hitachi-shi, Ibaraki | Arealty Japan