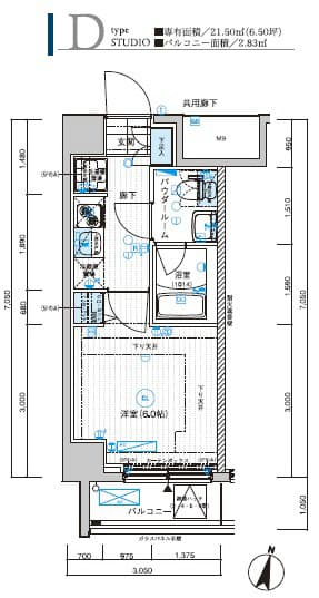
Tùy chỉnh tìm kiếmMain stage Yokohama east exit for Rent in Yokohama-shi Nishi-ku, Kanagawa | Arealty Japan