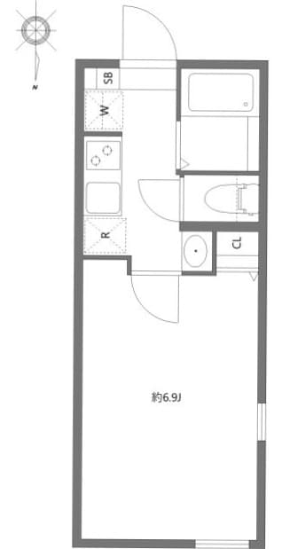
Tùy chỉnh tìm kiếmFracia Uguisudani for Rent in Arakawa-ku, Tokyo | Arealty Japan