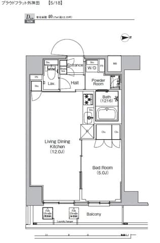
Tùy chỉnh tìm kiếmPROUD FLAT Sotokanda for Rent in Chiyoda-ku, Tokyo | Arealty Japan