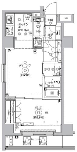
Tùy chỉnh tìm kiếmSejori Musashi Seki for Rent in Nerima-ku, Tokyo | Arealty Japan