






Guarantor company is required. Elz Support: initial 50%, monthly 1% *** Other initial costs total 16,500 yen (breakdown: 24-hour emergency support service 16,500 yen) Cancellation Penalty ⚠️ Short-term cancellation fee: 1 month's rent (if canceled within 1 year) Move-out Costs 🧹 Room cleaning | ❄️ Air conditioner cleaning | 🛠️ Restoration costs borne by tenant
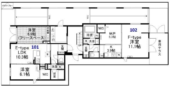
Room & Kitchen 🚽 Bath/Toilet separated | ❄️ Air conditioning | 👕 Closet & Walk-in closet | 🍳 System kitchen (Gas range) | 🍳 Face-to-face kitchen | 🧺 In-unit laundry | 🧼 Independent washroom & Bidet | 🚿 Bathroom dryer | 📦 Storage in all rooms Building & Security 🏢 Built within 2 years | 🔐 Auto-lock & TV intercom | 🔑 Dimple key & Double lock | 📦 Delivery box | 📐 Corner unit (3-side lighting) | 🚪 Door to washroom | 👠 Shoe box Location & Facilities 🚃 2 train lines accessible | 🚉 <10 min walk from station | 🐾 Pet consultation allowed | 📡 BS/CS | 🏃 Immediate move-in | 👤 No guarantor required
Phí ban đầu có thể được thanh toán bằng thẻ tín dụng
*Phí giao dịch bổ sung sẽ được áp dụng
Phí ban đầu có thể được thanh toán bằng thẻ tín dụng
*Phí giao dịch bổ sung sẽ được áp dụng
Đội ngũ thân thiện của chúng tôi rất mong được nghe từ bạn.