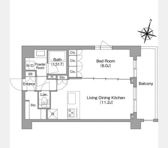
Tùy chỉnh tìm kiếmComforia Live Minamirokugo for Rent in Ota-ku, Tokyo | Arealty Japan