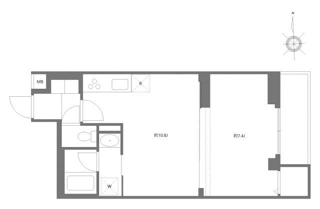
Tùy chỉnh tìm kiếmHarmony Residence Kamata Art V... for Rent in Ota-ku, Tokyo | Arealty Japan