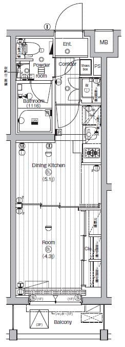
Tùy chỉnh tìm kiếmPREMIUM CUBE Setagaya #mo for Rent in Setagaya-ku, Tokyo | Arealty Japan