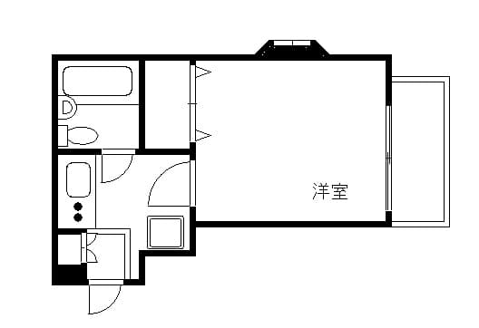
Tùy chỉnh tìm kiếmSaint-Emilion Shinagawa West for Rent in Shinagawa-ku, Tokyo | Arealty Japan