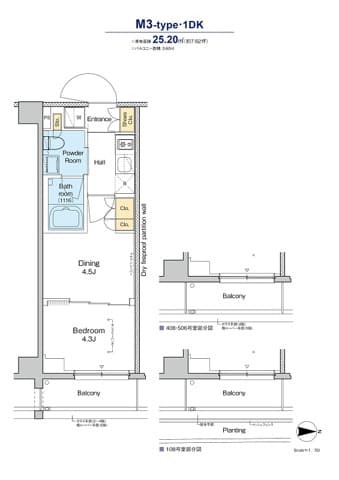
Tùy chỉnh tìm kiếmPROUD FLAT Shinagawa Oimachi for Rent in Shinagawa-ku, Tokyo | Arealty Japan