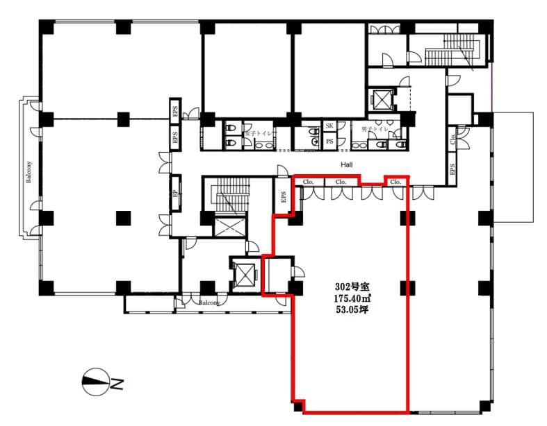
Tùy chỉnh tìm kiếmS&S Building for Rent in Shinjuku-ku, Tokyo | Arealty Japan