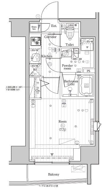
Tùy chỉnh tìm kiếmPremium Cube G Ichigaya Koracho for Rent in Shinjuku-ku, Tokyo | Arealty Japan