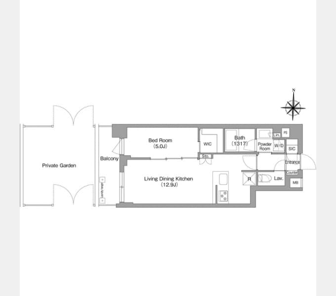
Tùy chỉnh tìm kiếmComforia Live Eifukucho for Rent in Suginami-ku, Tokyo | Arealty Japan