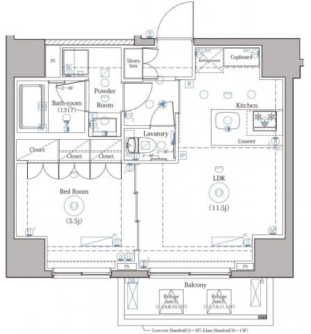
Tùy chỉnh tìm kiếmDIPS Ueno NORTH for Rent in Taito-ku, Tokyo | Arealty Japan