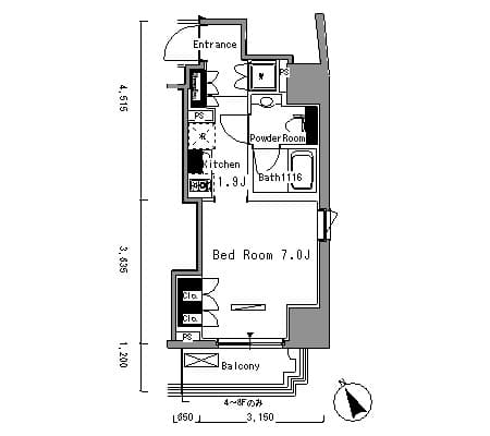
Tùy chỉnh tìm kiếmPark Axis Shin-Itabashi East | Apartment for Rent in Japan - Arealty Japan